05 Nov. Modernes Mehrfamilienhaus in Meerbusch: Jung trifft alt
Modernes Mehrfamilienhaus in Meerbusch:Jung trifft alt
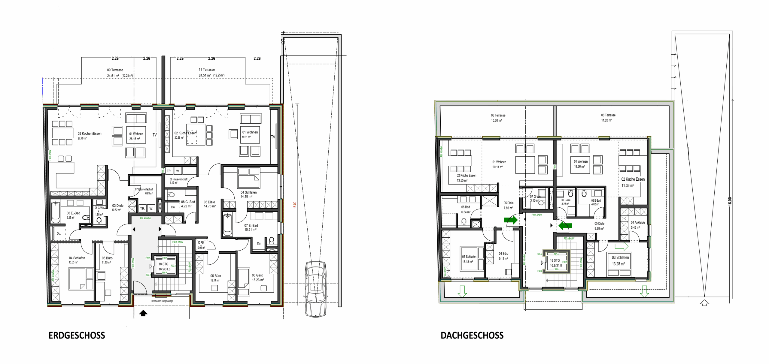
In zentraler Lage von Meerbusch-Lank entsteht ein modernes Mehrfamilienhaus mit acht Wohneinheiten, das zeitgemäße Architektur mit nachhaltiger Bauweise verbindet. Das Gebäude richtet sich an unterschiedliche Lebensphasen – von jungen Familien bis zu Seniorinnen und Senioren – und ermöglicht mit altengerechten Wohnungen ein barrierearmes, zukunftssicheres Wohnen in attraktiver Umgebung.
Baubeginn: 2024
Fertigstellung: 2026 (vorraussichtlich)
Wohnfläche: 960 qm
Grundstücksfläche: 1148 qm
Ort: Meerbusch
Besonderheiten:
Altengerechtes Wohnen
Mehrfamilienhaus
Tiefgarage, 18 Stellplätze
Bürogebäude rückwärtigen Bereich
barrierefreier Zugang
Staffelgeschoss



Formensprache & Grundrisskonzept
Die Architektur folgt dem Prinzip klarer Linien und ausgewogener Proportionen. Horizontale Bänderungen und der Kontrast aus dunklem Klinker und hellen Putzflächen verleihen dem Baukörper Tiefe und eine ruhige, zeitlose Präsenz.
Die zentrale, natürlich belichtete Erschließung sorgt für kurze Wege und klare Orientierung. Im Inneren steht funktionale Raumlogik im Vordergrund: Großzügige Wohn- und Essbereiche öffnen sich zu Balkonen oder Terrassen, während private Räume klar gegliedert und effizient organisiert sind.
Erdgeschosswohnungen bieten direkte Gartenanschlüsse, das Staffelgeschoss weite Dachterrassen mit hoher Aufenthaltsqualität. So entsteht eine Architektur, die Funktion, Licht und Raum zu einer präzisen, dauerhaften Einheit verbindet – reduziert, hochwertig und auf das Wesentliche konzentriert.
Zeitgemäß und barrierefrei – Wohnraum für alle Generationen
Das Mehrfamilienhaus an der Hauptstraße in Meerbusch steht für funktionale Planung, urbane Dichte und hochwertige Materialität. Die Kombination aus klarer Architektur, effizienter Erschließung und nachhaltiger Bauweise macht das Projekt zu einem zeitlosen Beispiel für modernes, generationenübergreifendes Wohnen – zukunftsorientiert, wertbeständig und architektonisch präzise formuliert.
So entsteht ein Gebäude, das nicht nur Wohnraum bietet, sondern Lebensqualität schafft – ein Ort, der modernes, barrierefreies und generationenübergreifendes Wohnen in seiner besten Form vereint.



